LOCALISATION

OULLINS - 69600

MISSION

CONCEPTION & TRAVAUX

SURFACE PROJET

45 m²

CALENDRIER

2025

BERGAME

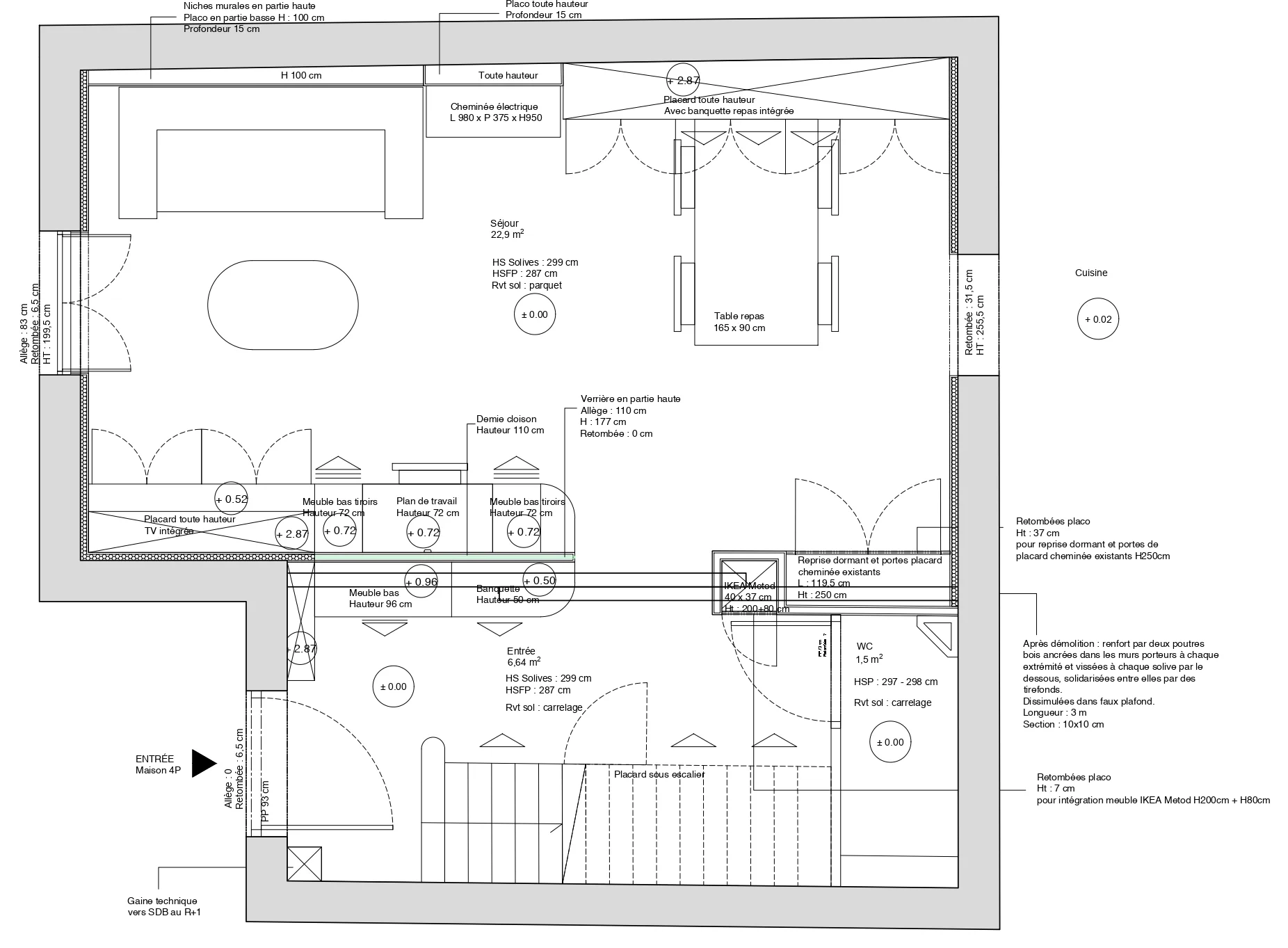
Rénovation partielle d’une maison individuelle

Dans cette maison familiale ayant connu plusieurs phases successives de rénovation, les clients souhaitent gagner en fonctionnalité et harmoniser l’ambiance sans perdre le cachet de l’ancien.

Le séjour et l’entrée sont repensés pour accueillir le maximum de rangements (mobilier sur mesure pour dissimuler le radiateur et le compteur électrique, créer un meuble à chaussures, des tiroirs penderies sous l’escalier, un meuble TV, une banquette repas, une bibliothèque ouverte) et aménager trois espaces en un : salon, salle à manger et zone de travail.

Une magnifique verrière sur mesure en bois massif délimite les volumes sans réduire la luminosité.

Tous les réseaux sont dissimulés dans les doublages et un faux plafond permet de redistribuer l’éclairage et d’isoler les chambres au-dessus.

La petite salle de bain des enfants à l’étage est rénovée pour optimiser l’espace : la douche remplace l’ancienne baignoire et un vrai WC suspendu remplace le sanibroyeur.

La maison avant travaux :

Précédent
Précédent

BEL AIR - Terminé

Suivant
Suivant

DAUPHINÉ - Terminé